Столик для телевизора из дерева с врезным декором - «Мебель сделай сам»
Все началось с покупки нового большого 65 дюймового телевизора. Вешать на стену телевизор я не хотел, а подходящего столика в магазине найти не получилось. Вот собственно я и решил смастерить его своими руками. У меня как раз на даче, в гараже был спил большого дерева, цельной плитой. Вещь как мне когда-то казалось, бесполезная. Как это я еще не соблазнился порубить его на дрова, но видимо что-то внутри меня знало, что спил мне еще понадобится.
Первым делом, я заспаклевал изьяны дерева. Срезал по габаритам стола. Получился следующий прямоугольник.
Шлифовать приходилось долго и нудно, но результат не заставил себя долго ждать.
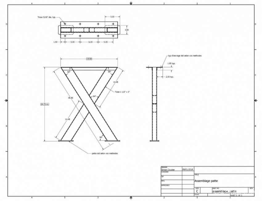
Ножки я сделал из металла. Чертеж следующий.
Благо моя работа связана с проэктировокй, так что с чертежем проблем небыло.
Крепления достаточно простые, но эффективные.
Также, в магазине фурнитуры прикупил полочку нижнюю полочку, из стали. Что бы можно было разместить что угодно.
Также, для декора сделал врезку бантиков.
Получается очень стильно. Плюс, ко всему скрывает изьяны столешницы.
Спасибо за внимание.
Автор - Simon_Cloutier












