Амстердамская квартира на четырех стальных столпах – проект Unknown Architects - «Интерьер»
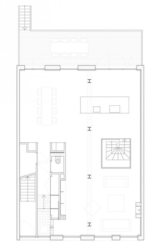
Несмотря на внушительную площадь, 200-метровая квартира в Амстердаме казалась неуютной и была плохо архитектурно решена: в вестибюле доминировала центральная несущая стена. Голландские архитекторы Unknown Architects первым делом избавились от навязчивого монолита и возвели на замену четыре стальных колонны.
- Локация: Амстердам
- Площадь: 200 кв.м
- Авторы: Unknown Architects
- Фото: MWA Hart Nibbrig
Бордовые колонны превратили этаж единый жилой оупен-спейс. Архитекторы первоначально планировали задать помещению индустриальный характер и оставить нетронутым красный оксид на поверхности металлических колонн, однако правила пожарной безопасности в Голландии предполагают обязательное применение огнестойких покрытий. Так, колонны пришлось покрасить в оттенок, соответствующий первоначальному цвету. Этот оттенок в пространстве поддерживает кожаный диван в лаунж-зоне. Стены на этаже выкрашены в белый, пол залит бетоном.
Читайте также: Строительство коттеджей под ключ – комплекс специальных работ, выполнение которых происходит в строгой последовательности. В результате клиент получает готовое здание, полностью готовое к эксплуатации только у нас - построить коттедж под ключ по доступным ценам ...
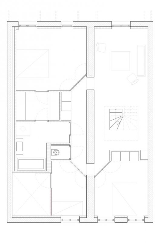
На месте бывшей стены расположились три образующих для пространства элемента: остров для завтрака из орехового дерева, покрытый серым мрамором, квадратный белый объем, который вмещает холодильник, гардероб, туалет и дополнительное место для хранения, а также – слегка извилистая лестница, ведущая на уровень подвала, где находятся спальни.
Мы разбираем интерьеры - подробно! Чтобы вы могли лучше понимать, на чем строится хороший интерьер, чтобы учились у лучших. Подготовка такого материала требует времени, а интерьеров много. Помогите нам выбрать самые достойные - проголосуйте ЗА интерьер, если вам хочется увидеть его в расширенной публикации и узнать детали создания.











